华埔建筑装饰工程有限公司——河南广播电视台都市频道《都市爱家》栏目指定施工方

时光凝聚美好,匠心磨砺品质。历经上千个日夜的的精琢细磨,所有美好和期待都如约而至。在心归家至的喜悦中,碧桂园•凤凰城一期业主迎来新房圆满交付。

▲ 碧桂园凤凰城小区环境实拍






▲ 碧桂园凤凰城小区环境实拍
★ 华埔装饰恭祝业主们开工大吉 ★

▲ 碧桂园凤凰城小区业主集体开工
从凤凰城开建、成型到交付,华埔装饰一直扎根小区做深度服务。华埔装饰西大区店长、总监杨龙超对选择和信任华埔装饰的45家凤凰城业主深表感谢。华埔装饰拥有庞大的规模和服务体系,无论从工人、材料还是服务,我们都能及时触达,为集体开工的业主做好工程品质和施工保障。

▲ 华埔装饰西大区店长、总监杨龙超
华埔装饰工程部经理庞玉龙带领项目经理团队宣誓,对工程品质做郑重承诺。我们将严格恪守华埔绿金刚工程标准施工工艺,秉承品质、专业、严谨的态度,高标准、严要求,做出优良的品质,给客户一个放心的家、满意的家。

▲ 华埔装饰工程部经理庞玉龙

▲ 项目经理宣誓
踏实、认真,是凤凰城业主刘老师对华埔最初的印象。刘老师讲到,很多年前都听说过华埔装饰,能做到现在必定有着自己的口碑和优势。后来也多方对比过,华埔的品牌优势、品质保障、设计师专业水准、高性价比的报价,都推动了我义无反顾的选择。作为业主,刘老师也提出了自己的建议和要求,希望华埔服务第一,生意第二,装修过程中保质保量保进度,出现问题及时协调解决,保障工期的顺利进展与工程的品质落地。

▲ 碧桂园凤凰城小区业主代表刘老师
★ 碧桂园凤凰城方案效果参考 ★
想必在交房前,大家都无数次畅想过新家未来的模样吧?是功能实用的现代风?是温婉大气的简约风?是温柔梦幻的奶油风?还是端庄优雅的新中式?......

▲ 碧桂园凤凰城业主部分签约数据
早在交房前,华埔装饰就已经入驻碧桂园凤凰城小区做社群开发服务,从小区施工进度播报、周边设施环境到户型的实地测量以及团队方案研讨,共同为新家五彩斑斓的生活做了无数的努力。
目前,碧桂园凤凰城全套户型方案已经非常成熟,如果您还在观望,或者对新家没有清晰的蓝图和规划,不妨来华埔装饰一站式了解,我们为您的新家装修保驾护航。
【89㎡方案效果】
▲ 碧桂园凤凰城89㎡ 原始结构图

▲ 碧桂园凤凰城89㎡ 平面布局图
- 89㎡效果预览 -




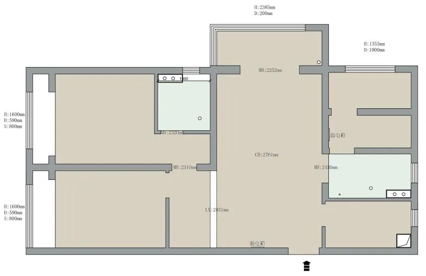
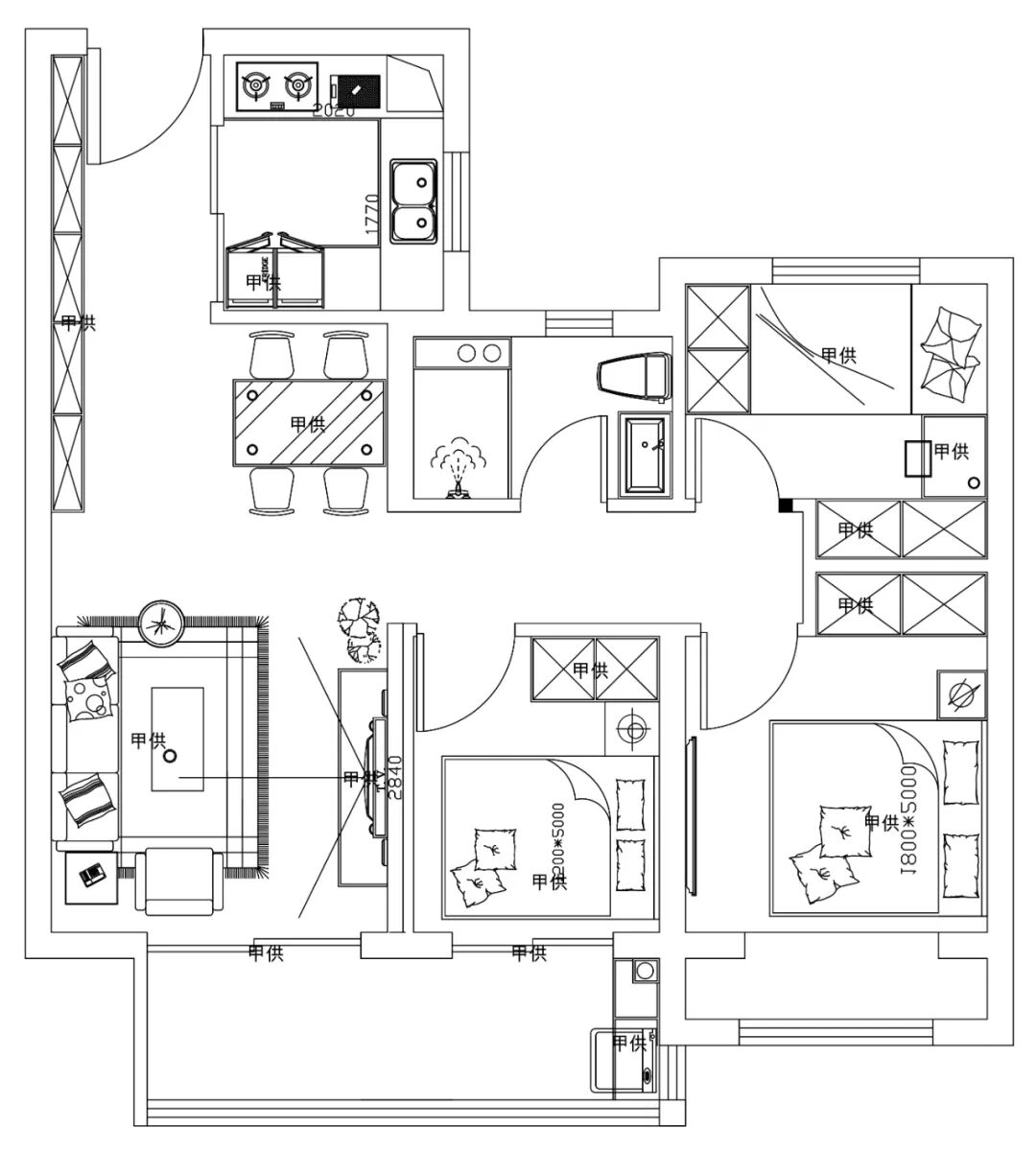
【115㎡方案效果】
▲ 碧桂园凤凰城115㎡ 原始结构图
▲ 碧桂园凤凰城115㎡ 平面布局图
- 115㎡效果预览 -





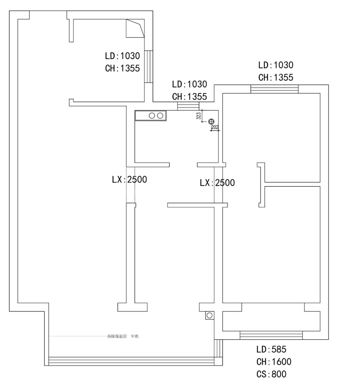
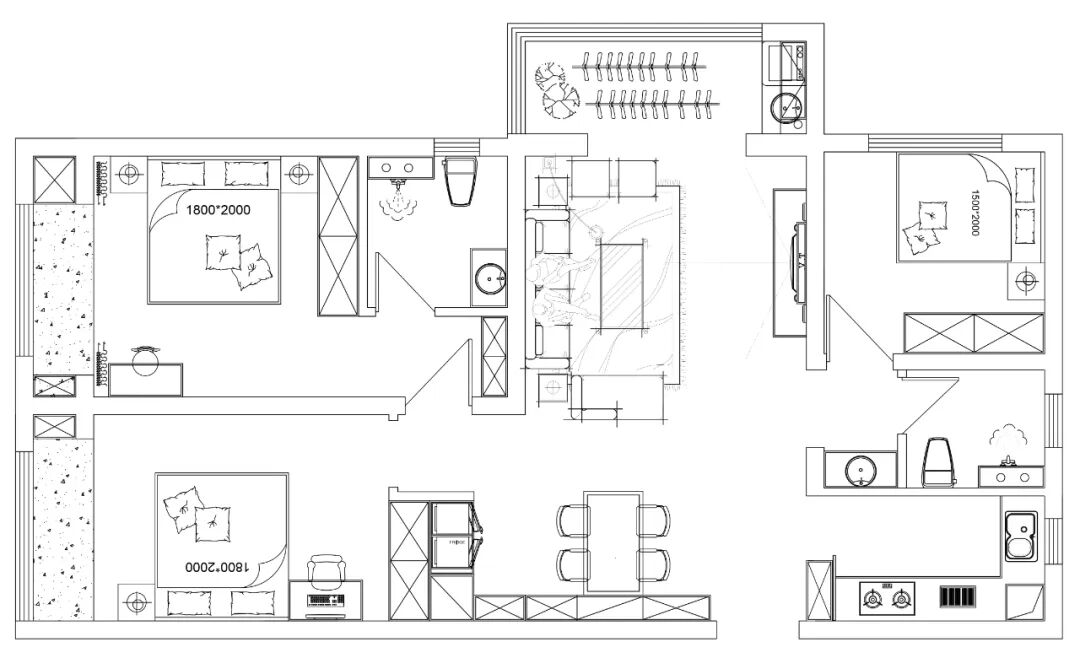
【115㎡方案效果】
▲ 碧桂园凤凰城115㎡ 原始结构图
▲ 碧桂园凤凰城115㎡ 平面布局图
- 115㎡效果预览 -





别墅大宅
企业简介
诚聘英才
联系我们
装修知识
完工实景
报价速算
装修贷款
友情链接 : 电梯安装公司